一、用途
BFD浮筒式水器是種污水處理的專用設備,適用于各種間歇循環活性污泥法污水處理系統,在排水階段,可將已經處理的上清液自表面搬出也可安裝在“調節一沉池”內,將沉淀后的上清液以恒定流量進入生物反應池,達到處理效果良好穩定的目的BFD浮集式尾水器使用于處理量小于200m/h的小型循環式活性污泥處理系統
二、型號說明
三、特點
1.構造簡單,維修方便
2.不需動力,靠浮力與自重升降
3.排水量可調操作簡單
4.容易實現自動控制
5.眼氣時厚簡升起防止污泥流入排水管
四、構造及工作過程
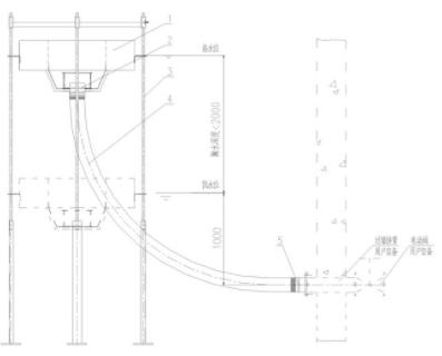
BFD浮簡式尾水器由浮筒,導水口,滑桿架出水軟管,出水竹節法蘭等部件組成,不需要動力,在氣和沉淀階段,水器浮于水面,處以待機狀態其外口軟管中所積清水形成水封,避免臟水進入外管搬水開始,電動閥門打開,池中的上清夜被排除,隨著水位的下降,浮筒在支架的導桿中徐徐向下滑動當水位降到zui低水位時,關閉電動閥門,排水結束,設備外形和技術參數見圖表
BFD型浮筒式潷水器
浮簧 2.導水口 3.滑竿架 4.出水軟管 5.竹參法蘭 BFD浮式水器外形圖
五、技術參數表
BFD浮簡式水器的土建條件圖通常視實際情況面定,所以設計時請與我公司聯系,由我公司 設計人員根據實際情況,給出具體的土建條件圖
