BTYX型行車式吸泥機
技術參數表
BTYX型行車式吸泥機
一.用途
行車式吸泥機適用于污水處理廠平流式沉淀地。其主要功能是將沉降在地底的污泥刮集至吸泥管管口,再 通過吸管排出沉淀池。運行形式是邊運行邊吸泥。
二、型號說明
三、特點:
1,工作橋采用桁架結構,簡潔、美觀、輕巧 2,維護簡單方便,運行費用低。 3.動減速機多種選擇:采用軸裝式,結構簡單素澳,檢修方便:采用擺線針輪減速機,價廉物 美、傳動效率高,行走輪采用鋼輪 4.系統控制柜采用戶外型,安全可靠,可隨機控制和遠程控制。輸電裝置可以根據用戶要求采用 電纜掛架(標準配置),滑觸線、電纜滾簡等不同型式。 設備的尺寸、材質及其他配可根據用戶需求而定
四、構造及工作過程
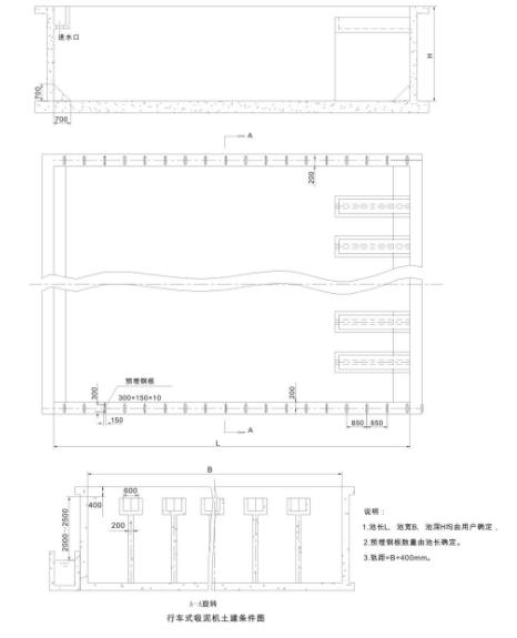
行車式吸泥機根據吸泥形式的區別可以分成泵吸混機和虹吸泥機兩種形式 行車式泵吸泥機由工作橋,吸泥管、集泥板、排泥管,液下污混,驅動機構、電控箱等主件和出水三角 板等附件(可選)組成 行車式虹吸泥機由工作橋,吸混管、集泥板,抽真空系統(真空),驅動機構、電控箱等主件和出水三角 板等附件(可選)組成 行車式(虹)吸泥機由四點支撐行走大橫在平流式沉淀地上,雙邊驅動,地兩邊均鋪設軌,從地的一 端運行到池子的另一端,邊運行邊吸泥。由兩端行程開關控制其往復運行。運行和停車時間根據污泥量由時 繼電器控制 設備外形圖、技術參數和土建條件尺寸見圖表
BTYHX型行車式吸泥機
技術參數表:
BTYHX型行車式吸泥機
